Le Pigeonnier, The Farmhouse In The Grounds
Saint-Hélen
propre moyen de transport
10.0/10
Plus d´informationPhotos Le Pigeonnier, The Farmhouse In The Grounds
Saint-Hélen - 1 Rue du Clos d’épine, 22100 St Helen, Brittany.
Doté d’un bain à remous, l’hébergement Le Pigeonnier, The Farmhouse In The Grounds vous accueille à Saint-Hélen, à 29 km de ce lieu d’intérêt : Tour Solidor. Cet hébergement est installé à 10 km de : Gare de Dinan. Il comprend une piscine extérieure ouverte en saison et un parking privé gratuit.
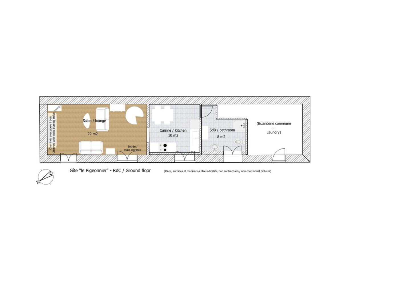
Cette maison de vacances se compose de 2 chambres séparées, dune cuisine entièrement équipée avec un réfrigérateur et un lave-vaisselle, ainsi que de 2 salles de bains. Une télévision est à votre disposition.
Vous séjournerez à respectivement 30 km et 30 km de ces lieux d’intérêt : Palais du Grand Large et Casino. Laéroport le plus proche (Aéroport de Rennes-Saint-Jacques) est à 54 km.
Arrivée à partir de 16:00 et se termine à 10:00.
Les enterrements de vie de célibataire et autres fêtes de ce type sont interdits dans cet établissement.
Maison de Vacances. This holiday home features a private pool and a fireplace. The spacious holiday home features a tea and coffee maker, a high chair for children, as well as a shared bathroom boasting a hairdryer. Guests will find a stovetop, a refrigerator, a dishwasher and kitchenware in the fully equipped kitchen. The holiday home also comes with a barbecue. This holiday home offers heating and a TV. The unit has 3 beds.
Informations complémentaires sur l´offre fr - Saint-Hélen - Le Pigeonnier, The Farmhouse In The Grounds, les avis des vacanciers ainsi que les dates disponibles sont à retrouver sur le site notre associé.
Réserver
L´offre de notre partenaire: Booking.com BG.3721802









